Langsung ke konten utama

Rumah 9x9 3 Kamar Cocok Untuk Keluarga Milenial Agar Hunian Terkesan Luas Dan Nyaman, Bisa Banget Dijadikan Inspirasi Hunian Idaman Anda

Konten [Tampil]
    Rumah 9x9 3 Kamar

    Hunian bagus, tidak selalu harus berukuran besar dan mahal. Desain rumah 9x9 3 kamar pun dapat tampil menjadi hunian apik dan nyaman. Desain interior dan eksterior rumah nantinya bisa ditata dengan tepat, sehingga tampilan dan suasananya pun bisa membuat para penghuni rumah betah di rumah. 

    Salah satu inspirasi desain minimalis bisa Anda contoh pada desain dan denah rumah 9x9 3 kamar berikut.

    Denah Rumah 9x9 3 Kamar Tidur

    Denah Rumah 9x9 3 Kamar Tidur
    99.co

    Jika Anda ingin memiliki hunian dengan tiap ruangnya memiliki ukuran yang ideal, maka denah ini dapat menjadi pilihan yang tepat. Denah ini juga terbilang cukup sederhana jika dibandingkan denah-denah sebelumnya.

    Memiliki dua taman mungil yang terletak di bagian depan dan belakang rumah. Ukuran garasi pun hanya cukup untuk satu mobil saja. Denah ini benar-benar memaksimalkan lahan untuk ukuran kamar yang ideal.

    Desain Rumah 9x9 3 Kamar Tidur

    Desain Rumah 9x9 3 Kamar Tidur
    helloshabby.com

    Area pada fasad hunina ini terlihat modern dan natural, sehingga cocok untuk rumah di kota atau di desa. Desain rumah 9x9 3 kamar tidur ini memiliki tembok pagar didesain dengan kombinasi batu alam, semen ekspos dan dinding eksterior keramik sehingga membuatnya terlihat dinamis. 

    Untuk pagarnya dipilih menggunakan pagar besi hollow dengan plank kayu. Pagar ini dibuat dengan metode sliding sehingga lebih hemat space dan cukup efektif dan efisien untuk akses keluar masuk kendaraan. 

    Pada eksterior rumah ini juga tampil menarik, dengan adanya dinding eksterior dan finishing coklat kayu. Dinding ini juga tampil menjadi kontras yang menawan di fasad rumah rumah 9x9 3 kamar tidur ini.

    Rumah Ukuran 9x9 Kamar 3

    Rumah Ukuran 9x9 Kamar 3
    99.co

    Denah rumah ukuran 9x9 kamar 3 di atas dikhususkan untuk Anda para keluarga yang menjunjung tinggi privasi. Sekat tinggi ini memisahkan rumah menjadi dua bagian, yaitu kamar tidur dan ruang rekreasi lainnya.

    Sama seperti denah rumah e kamar pada umumnya, denah satu ini pun menggabungkan ruang makan, ruang TV dan dapur tanpa adanya sekat. Jika Anda ingin memisahakan ruang, Anda bisa menggunakan sekat yang bukan permanen atau bisa juga menggunakan lemari untuk pembatas.

    Desain Rumah Ukuran 9x9 3 Kamar Tidur

    Desain Rumah Ukuran 9x9 3 Kamar Tidur
    99.co

    Inspirasi desain rumah ukuran 9x9 3 kamar tidur ini hadir dari unit perumahan di Summarecon Bekasi. Walaupun desain fasad ini dibuat oleh developer, namun desainnya cukup menarik untuk Anda ikuti.
    Rumah satu lantai ini bisa terlihat unik dengan adanya dak beton yang melindungi area teras.

    Selain itu, bangunan ini juga terdapat kolom kayu di bagian depan pintu utama sehingga dapat menjaga privasi penghuni rumah.

    Denah Rumah Ukuran 9x9 3 Kamar Tidur

    Denah Rumah Ukuran 9x9 3 Kamar Tidur
    lamudi.co.id

    Denah rumah ukuran 9x9 3 kamar tidur ini memiliki konsep modern minimalis, denah ini juga menyediakan tiga kamar tidur dan satu kamar mandi. Setiap kamar ini juga dibuat memiliki jendela agar tetap menjaga sirkulasi udara di dalam kamar. Jika Anda menginginkan konsep yang minimalis namun tetap menjaga privasi setiap keluarga Anda, maka denah ini bisa menjadi pilihan Anda yang tepat.

    Denah Rumah 3 Kamar Ukuran 9x9 Mushola

    Denah Rumah 3 Kamar Ukuran 9x9 Mushola
    gramedia.com

    Apabila Anda tidak puas hanya dengan tiga kamar tidur saja dan ada space ruangan, Anda juga bisa menghadirkan mushola atau tempat ibadah, seperti yang terlihat pada denah rumah 3 kamar ukuran 9x9 ini.

    Bukan hal yang mustahil untuk Anda bisa membangun sebuah tempat ibadah dengan lahan terbatas. Pada lahan tersebut, Anda bisa memanfaatkan space ruangan yang ada dengan mendesain setiap ruangan sefungsional mungkin. 

    Salah satunya yaitu adalah dengan membangun setiap ruangan, agar tidak terlalu besar dari ruang lainnya. Sehingga ruangan satu dengan lainnya pun masih bisa dimaksimalkan untuk kebutuhan lain.

    Denah Rumah Dengan Luas Tanah 9x9 Dengan 3 Kamar

    Denah Rumah Dengan Luas Tanah 9x9 Dengan 3 Kamar
    gramedia.com


    Ketika Anda memiliki lahan yang cukup kecil, Anda bisa menggunakan konsep seperti yang terlihat pada denah rumah dengan luas tanah 9x9 dengan 3 kamar, maka dengan desain rumah minimalis ini sangatlah cocok dibangun di atas lahan tersebut. 

    Dengan memaksimalkan luas tanah yang ada dan dengan penataan ruang yang memaksimalkan fungsi dengan sedikit penyekat, maka rumah minimalis pada lahan tersebut bisa terasa lebih lega.

    Seperti denah diatas, memaksimalkan luas tanah 9x9 tersebut yang membangun tiga kamar tidur, satu kamar mandi, teras, ruang tamu, ruang keluarga serta dapur.  Karena lahan ini kecil, maka dapur serta ruang keluarga pun bisa dibangun tanpa penyekat, untuk memisahkan antar dua ruangan tersebut. Anda dapat menggunakan furnitur berupa lemari atau penyekat lainya. 

    Nantinya penggunaan kaca jendela pun bisa terlihat banyak digunakan pada contoh desain rumah diatas, agar cahaya alami bisa masuk dengan mudah untuk mengurangi penggunaan listrik.

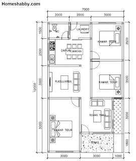
    Rumah Ukuran 9x9 Dengan 3 Kamar Tidur

    Rumah Ukuran 9x9 Dengan 3 Kamar Tidur
    homeshabby.com

    Rumah ukuran 9x9 dengan 3 kamar tidur ini menggunakan batu bata merah tanpa adanya plester di sisi dinding fasad bangunan yang cocok untuk diterapkan dirumah dengan desain modern kekinian. 

    Warna dan tekstur yang natural ini mampu menggambarkan kesederhanaan dan kehangatan pada tampilan eksterior rumah. Selain itu dengan penerapan batu bata tanpa plester mampu membuat Anda untuk lebih hemat secara ekonomis, karena Anda tidak perlu lagi mengeluarkan biaya untuk plester dan biaya perawatan cat rumah. 

    Kisaran harga batu bata ekspos ini 1500/biji atau 120ribu/meter di daerah kota-kota besar. Sehingga dengan adanya pemilihan material yang pakai, membuat desain rumah Anda nantinya bisa terlihat semakin menawan dengan padu padan bahan material kayu, beton serta vegetasi alami yang selaras. 

    Gambar Rumah 9x9 Tampak Depan

    Gambar Rumah 9x9 Tampak Depan
    homeshabby.com

    Tampilan fasad pada gambar rumah 9x9 tampak depan ini menampilan tampilan minimalis yang unik dengan sentuhan batu alam pada bagian dinding yang menjorok kedepan. 

    Pada area terasnya ini menggunakan material kayu yang disusun secara vertikal pada bagian kanan dan kiri. Untuk menampilkan variasi yang beda daripada yang lain, pada area terasnya menggunakan pijakan tangga kecil 3 susun yang bisa menambah kesan yang cantik pada tampilan fasad.

    Denah Rumah 9x9 2 Kamar Tidur

    Denah Rumah 9x9 2 Kamar Tidur
    99.co

    Banyak cara ketika membuat rumah minimalis terlihat betah untuk dihuni. Salah satunya adalah dengan membuat kamar yang lebih luas jika dibandingkan dengan ruang lainnya di dalam rumah. Ini dikarenakan fakta dilapangan, bahwa setiap orang lebih banyak meluangkan waktu di kamar tidur.
    Itulah mengapa kamar tidur harus dibuat nyaman.

    Pada contoh denah rumah 9x9 2 kamar tidur di atas, arsitek ini mengecilkan ukuran dapur dan mengapitnya di antara dua kamar yang luas. Alhasil, setiap kamar tidur pun bisa dilengkapi dengan kamar mandi pribadi.

    Denah Rumah 9x9 Minimalis

    Denah Rumah 9x9 Minimalis
    lamudi.co.id

    Denah rumah 9x9 minimalis ini memiliki konsep modern minimalis, denah ini juga menyediakan tiga kamar tidur dan satu kamar mandi. Setiap kamar ini juga dibuat memiliki jendela agar tetap menjaga sirkulasi udara di dalam kamar. Jika Anda menginginkan konsep yang minimalis namun tetap menjaga privasi setiap keluarga Anda, maka denah ini sangat cocok untuk pilihan Anda, konsepnya minimalis dan sangat efektif.

    Denah Rumah 9x9 4 Kamar Tidur

    Denah Rumah 9x9 4 Kamar Tidur
    99.co

    Denah rumah 9x9 4 kamar tidur ini memiliki konsep minimalis. Konsep ini bisa menghadirkan hunian dengan kamar yang banyak di atas lahan terbatas. Kemudian, ruang tengahnya mengusung pada konsep open space yang berisi 1 kitchen bar dan 1 ruang keluarga.

    Keempat kamarnya juga memiliki kamar mandi dalam dan walk in closet dipastikan bisa memberikan kenyamanan pada pemilik kamar.

    Desain Rumah 9x9 1 Lantai

    Desain Rumah 9x9 1 Lantai
    oliswel.com

    Jika Anda memiliki halaman yang agak luas, kenapa Anda tidak coba desain rumah minimalis 1 lantai yang memiliki banyak ruangan. Seperti yang terlihat pada konsep desain rumah 9x9 1 lantai ini. Setiap ruangannya ada pintu di depan seperti deretan ruangan, yang terpisah. 

    Semuanya juga langsung terhubung dengan halaman depan. Ini sepertinya hampir mirip dengan deretan rumah kontainer yang disejajarkan. Jangan lupa juga untuk memakai bahan kaca, agar semakin terlihat modern.

    Denah Rumah 9x9 2 Lantai

    Denah Rumah 9x9 2 Lantai
    99.co

    Tidak usah takut lagi mengantri kamar mandi dengan denah rumah 9x9 2 lantai berikut ini. Pasalnya, dengan memiliki 4 kamar mandi dengan penempatan 2 di bawah dan 2 di atas. Selain keuntungan jumlah kamar mandi, denah rumah di atas pun juga dilengkapi dengan taman depan dan belakang luas. seperti yang terlihat pada konsep denah rumah 9x9 2 lantai. Konsepnya minimalis namun cukup untuk anggota keluarga.

    Biaya Bangun Rumah Ukuran 9x9

    Biaya Bangun Rumah Ukuran 9x9
    99.co

    Biaya bangun rumah ukuran 9x9 biasanya dimulai dari luas tanah, model rumah, dan kisaran harga bangunan di lokasi. Misalnya saja Anda ingin membangun rumah minimalis ukuran 9 m2 x 9 m2= 81 m² dengan harga per m² mencapai Rp2,5 juta.

    Nah, harga tersebut nantinya bisa Anda jadikan patokan untuk biaya rumah yang akan dibangun. Berikutnya, Anda bisa mulai menghitung biaya yang diperlukan untuk membangun rumah.
    Cara Anda menghitung biaya bangun rumah begini:

    Luas bangunan = 81 m²
    Harga per m² = Rp2 juta
    Dengan asumsi tersebut maka biaya untuk bangun rumah 81m² x Rp2 juta adalah Rp.162 juta.

    Lewat metode yang satu ini, Anda bisa memperkirakan dengan cepat berapa biaya bangun rumah per meter yang kini dibutuhkan.

    Namun, Anda perlu catat bahwa perhitungan ini tidak bisa menghasilkan angka yang mutlak, ya. Hal ini juga karena harga bangunan perm² akan berbeda-beda tergantung pada wilayahnya.

    Belum lagi ada biaya lain di luar biaya utama untuk membangun rumah tersebut, salah satunya tanah. Anda pun bisa konsultasikan pada arsitek dengan review terbaik didaerah Anda.

    Desain Rumah Minimalis 3 Kamar

    Desain Rumah Minimalis 3 Kamar
    blkp.co.id

    Desain rumah minimalis 3 kamar ini memang pilihan yang ideal untuk banyak fungsi dalam waktu yang lama. Desain rumah minimalis 3 kamar ini memang tidak pernah salah. Dengan ukuran yang cukup ideal, rumah pun bisa menjadi tidak terlalu besar atau terlalu kecil. 

    Dengan menyiapkan 3 kamar tidur, Anda pun bisa dengan mudah menampung tamu yang sering datang atau anggota keluarga baru, tanpa harus mengorbankan ruangan lain yang sudah didedikasikan untuk bekerja atau bermain. 

    Selain sebagai tempat tidur, ada kamar-kamar tersebut juga bisa beralih fungsi untuk kebutuhan lain. Misalnya saja, ketika anak-anak yang sudah dewasa, kamar tidur pun bisa menjadi ruangan tambahan yang fleksibel untuk gudang, gym dan lain-lain.

    Desain Rumah 9x9 3 Kamar

    Desain Rumah 9x9 3 Kamar
    pinhome.id

    Buat Anda yang memiliki lahan yang sempit, namun memanjang, Anda bisa meniru desain rumah 2 lantai yang minimalis dan kekinian satu ini. Rumah ini pun memiliki atap beton berbentuk segitiga dengan jendelan kaca super lebar yang memenuhi satu sisi dinding di lantai dua. 

    Sementara itu, bagian lantai 1 atau lantai dasarnya bisa di pasang pintu lebar dan tinggi agar cahaya yang masuk ke dalam rumah bisa lebih maksimal. Model rumah ini juga bisa menjadi inpsirasi buat Anda yang ingin membangun rumah di lahan yang sempit namun tetap terlihat estetik dan kekinian.

    Desain Rumah Ukuran 9x9 3 Kamar Tidur

    Desain Rumah Ukuran 9x9 3 Kamar Tidur
    99.co

    Desain rumah ukuran 9x9 3 kamar tidur merupakan rujukan dari hunian tipe 72 yang berada di perumahan umumnya didesain satu lantai dengan fasad yang minimalis. Anda juga dapat mengaplikasikan desain tersebut, jika Anda menginginkan desain fasad rumah yang sederhana.

    Seperti yang terlihat pada gambar bagian depan rumah ini yang terlihat sederhana dengan desain fasad minimalis dan taman kecil.

    Rumah ini juga terasa sejuk dengan ventilasi berupa jendela yang berukuran besar. Desain jendela ini juga cukup fungsional karena bisa sekaligus membuat ruangan di dalam terang dan terkesan luas.

    Gambar Denah Rumah Ukuran 9x9 3 Kamar Tidur Modern

    Gambar Denah Rumah Ukuran 9x9 3 Kamar Tidur Modern
    prospeku.com

    Model umum pada gambar denah rumah ukuran 9x9 3 kamar tidur modern ini adalah dengan menempatkan ketiga kamar tidur serta dapur, ruang makan, ruang tamu, hingga carport pada satu lantai seperti yang terlihat pada gambar di atas.

    Bangunan ini kurang lebih memiliki luas lahan 102 meter persegi tersebut bisa Anda tiru untuk membangun rumah dengan anggota keluarga yang sedikit. Gambar denah rumah ukuran 9x9 3 kamar tidur berada didalam hunian yang bisa Anda manfaatkan sebagai kamar tidur utama, anak pertama, dan anak kedua.

    Jika Anda melihat pada contoh diatas, penataan yang tepat ini masih bisa menghasilkan sisa halaman untuk digunakan sebagai ruang terbuka di lingkungan rumah. Coba Anda bagi rata antara lahan kosong pada sisi depan dan belakang rumah. Anda pun bisa membuat taman kecil sebagai hiasan pada fasad dan taman belakang untuk menanam tumbuhan hiasan rumah.

    Pemilihan desain rumah 9x9 3 kamar seperti pada contoh diatas, bisa jadi salah satu opsi Anda sebelum membangun rumah. Jangan lupa untuk merencanakan secara detail, bagaimana pemanfaatan ruang-ruang yang ada nantinya ketika Anda sudah menghuni rumah tersebut. Semoga bermanfaat ya!


    ARTIKEL YANG SEDANG DIBACA

    Denah Rumah Minimalis 3 Kamar Ukuran 7x9 Terbaik 2023

    Denah rumah minimalis 3 kamar ukuran 7x9 kini menjadi trend karena ukurannya yang terlihat ideal dan sangat cocok untuk desain rumah minimalis. Desain ini menjadi favorit untuk saat ini karena menghadirkan kesan yang sederhana namun elegan.  Namun pemilihan denah cukup penting agar bisa memberikan kenyamanan untuk penghuninya, jika Anda masih kesulitan mencari denah rumah 3 kamar dengan ukuran 7×9, berikut ini ada beberapa denah rumah minimalis yang bisa Anda jadikan referensi. Gambar Pondasi Rumah 7x9 3 Kamar Gambar denah pondasi rumah ukuran 7×9 ini bisa menjadi inspirasi yang tepat untuk Anda yang ingin memiliki rumah minimalis dengan 3 kamar tidur serta 1 kamar asisten rumah tangga. Maka, Anda bisa membuat 2 kamar tidur utama dengan ukuran yang lebih luas yaitu ukuran 3,5 meter. Sedangkan kamar untuk anak bisa Anda buat dengan ukuran 4 meter. Di bagian belakang, Anda bisa menambahkan kamar asisten rumah tangga dengan ukuran 2,5 meter sehingga total ada 4 kamar di dalam rumah. D...

    Bangunan Rumah Minimalis Bisa Menjadi Inspirasi Bagi Anda Yang Ingin Berencana Membangun Atau Merenovasi Hunian Biasa Menjadi Modern Dan Terlihat Elegan

    Di kalangan generasi milenial, bangunan rumah minimalis kini semakin banyak digemari. Sebab, banyak sekali keuntungan dalam membangun hunian minimalis. Selain karena hemat tempat, pembangunan landed house minimalis juga membutuhkan dana yang lebih rendah dibandingkan dengan hunian mewah.  Plus, biaya perawatannya pun akan jauh lebih murah jika dibanding dengan hunian mewah. Hunian tapmak minimalis modern dewasa ini juga seringkali diadopsi oleh para keluarga milenial.  Rumah yang identik dengan penataan minim sekat dan pembatas ruangan juga membuat area rumah terasa lebih luas, Anda bisa menyiasati luas rumah yang kompak bisa menjadi semakin nyaman untuk dihuni.  Biaya Bangun Rumah Minimalis finansialku.com Walaupun rumah yang ingin Anda bangun adalah rumah minimalis, Anda harus perhatikan bahwa biaya bangun rumah yang dikeluarkan bisa jadi tidak seminimalis harapan Anda. Karena biaya bangun rumah akan sangat mempengaruhi oleh pilihan material, bahan bangunan, hingga perl...

    Warna Cat Rumah 2022 Bagian Luar Yang Bagus Akan Menambah Kesan Tenteram Pada Rumah Minimalis, Ada Bagian Interiornya Juga Gak Kalah Menarik

    Bagian eksterior rumah merupakan hal yang sangat penting untuk diperhatikan karena bagian luarlah yang akan pertama kali terlihat olehorang saat melwati dan berkunjung kerumah.  Selain konsep bangunan, pemilihan warna cat juga akan sangat mempengaruhi tampilan keseluruhan dari suatu hunian. Umumnya, orang-orang memilih warna-warna tertentu untuk menunjukkan pada kepribadian mereka.  Warna Cat Tembok Luar Rumah 2022 pacificpaint.com Dalam hal pemilihan warna cat untuk ekterior rumah memanglah tidak mudah, akan tetapi hal itu sangatlah penting. Karena warna cat bisa menentukan karakter dari si pemilik rumah dan selain enak dipandang, dalam menentukan warna cat rumah yang sejuk ini bisa membuat nyaman dan mampu memberikan aura positif. Kami menyarankan agar tidak asal dalam memilih warna cat rumah yang sejuk, karena jika salah maka artinya akan berbeda. Warna cat rumah yang sejuk ini adalah warna biru langit, warna ini sangat unik dan enak di pandang. Selain warnanya yang sejuk, ...